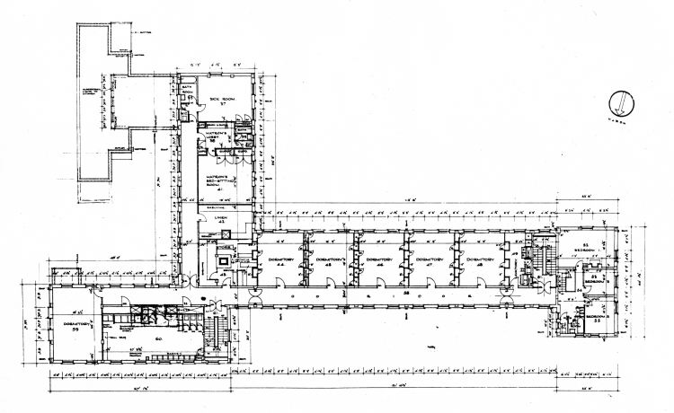
| Plans of Tulk (West) House, 1949 - architect's drawings |
Ground floor |
![]() |
First floor |
|
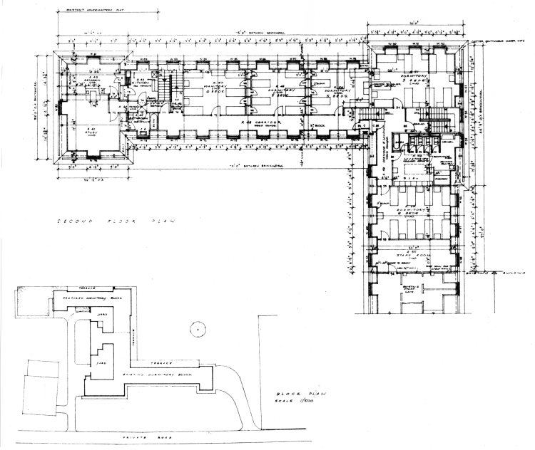
| Second floor |
![]() |
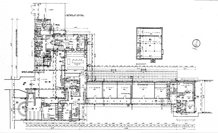
| Plans of Tulk House, 1959 - architect's drawings |
Ground floor |
![]() |
First floor |
|
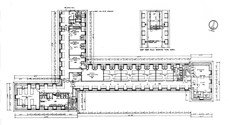
| Second floor |
![]() |