| Plans of The Mansion, 1979 - showing classrooms and accomodation |
First basement |
![]() |
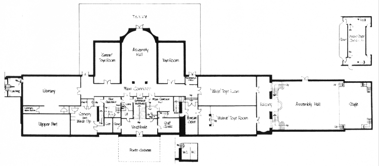
Ground floor |
|
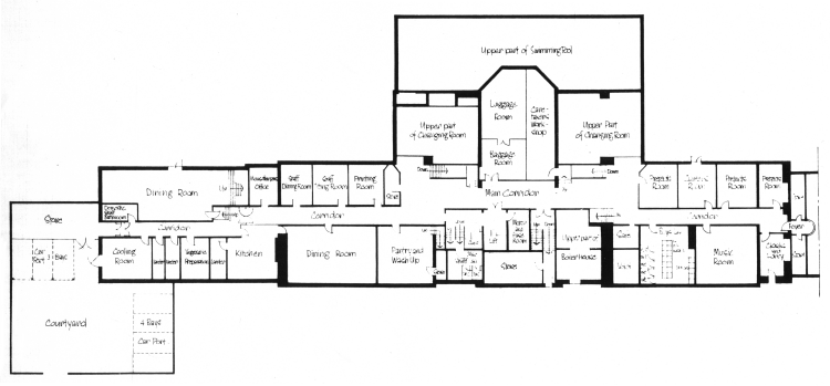
| First floor |
![]() |
Second floor |
![]() |
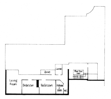
Mezzanine floor and attic |
![]() ![]() |
| Ottershaw Park - architects' plans of The Mansion 1910 |
|
Note: Plans by Niven & Wigglesworth SHC: CC82/1-11 |
![]() |
![]() |
![]() |
![]() |
![]() |
![]() |
![]() |
![]() |
![]() |
![]() |
| Ottershaw Park - architects' plans of The Mansion post 1910 (and annoted probably in 1930's) |
|
Note: Plans by ?Niven & Wigglesworth SHC: CC105/1-7 |
![]() |
![]() |
![]() |
![]() |
![]() |
![]() |
![]() |