Plans of the North Lodges

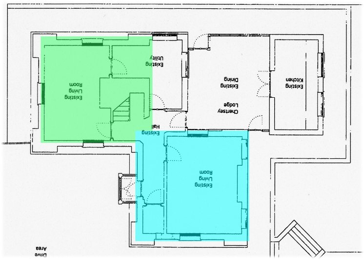
Ottershaw Park - architects plans of Chertsey Lodge, 2005

Note: The original rectangular lodge (shaded green) can be seen on both the ground floor plan (above) and the first floor plan (below) with the 1910 extension (shaded blue)

Ottershaw Park - architects plans of The Gate House, 2008

Note: The original rectangular lodge (shaded green) can be seen on both the ground floor plan (above) and the first floor plan (below) with the 1910 extension (shaded blue) and the 1960's and 1990's extensions (unshaded).