| Plan of the Bothy from a sale catalog of 1859 |
| Note: The layout of what are now nos 15, 16 and 17 are substantially the same today. |
![]() |
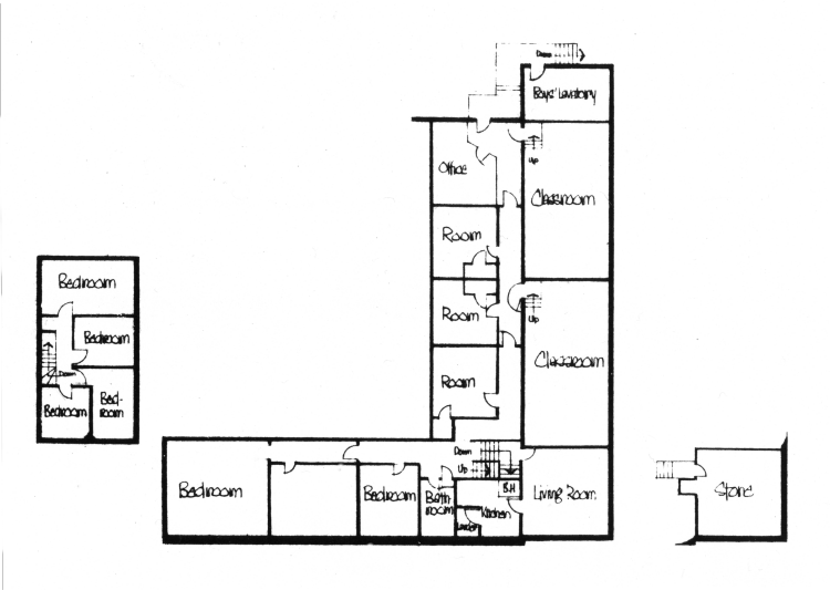
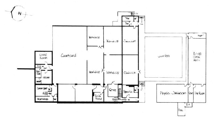
| Plans of The Bothy, 1979 - showing classrooms and accomodation |
Ground floor |
![]() |
First floor and second floor |
![]() |
Architect's plans for developing The Bothy 1981 (from John Browning) |
| Note: These plans were not implemented |
![]() |
| Architect's plans for developing nos. 20-22 Ottershaw Park 1981 (from John Browning) |
| Note: These plans were not implemented. No 22 was demolished and rebuilt. |
![]() |